[Overview]
A long, retreat for wide open country. Timber, steel and golden light. Designed to belong.
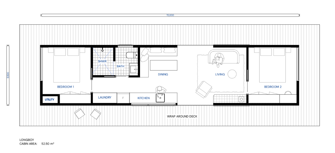
Built for rural blocks, farm stays, and hinterland escapes. The Hinterland is a single-level retreat that stretches across the landscape rather than rising above it. Long-form living with a generous deck, warm timber accents, and a considered interior that works as a weekender, a permanent residence, or a guest accommodation on working land.
Sleeps
4-6
Beds
2 Beds
Baths
1 Bath
Floors
1
Dimensions
53m²: 15L x 3.5W x 3.8H

[Plans]
[Custom Finishes]